Неэффективное отопление – распространенная проблема, приводящая к дискомфорту и лишним затратам. Холодные батареи, неравномерный прогрев помещений, постоянные счета за отопление – все это может быть следствием неправильной установки радиаторов. Самостоятельный монтаж, без учета всех нюансов и требований, чреват ошибками, которые в итоге обернутся серьезными проблемами. В 2025 году, с учетом новых технологий и строительных норм, особенно важно подходить к установке радиаторов ответственно.
Актуальность правильной установки обусловлена не только комфортом, но и долговечностью всей системы отопления. Несоблюдение правил может привести к протечкам, коррозии труб, снижению эффективности работы системы и даже к аварийным ситуациям. Согласно строительным нормам, действующим в 2025 году, системы теплоснабжения должны соответствовать требованиям санитарной, экологической и пожарной безопасности. Данная статья станет вашим надежным помощником в вопросах монтажа радиаторов отопления, поможет избежать распространенных ошибок и научит всем тонкостям, чтобы обеспечить эффективный и надежный обогрев вашего дома.
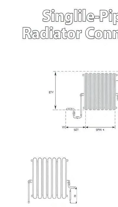
Разностороннее присоединение трубопроводов следует предусматривать к радиаторам с числом секций более 20 (более 15 в системах с естественной циркуляцией), а также к радиаторам, соединенным на сцепке, при числе их более двух. Важно помнить, что каждый изготовитель батарей прилагает свою инструкцию, в которой излагаются требования и советы по установке. Но одно требование одинаково: монтировать радиатор следует на заранее выровненную и очищенную стену. Крепление к стене – это ключевой момент, влияющий на эффективность функционирования системы отопления.
Согласитесь, нет ничего приятнее, чем возвращаться в теплый дом в холодный зимний вечер. Но что, если ваши радиаторы едва греют, счета за отопление растут, а комфорт оставляет желать лучшего? Неэффективное отопление – это не просто дискомфорт, но и удар по вашему бюджету. Часто причина кроется в неправильной установке радиаторов, выполненной с нарушением простых, но важных правил.
Монтаж радиаторов отопления своими руками – задача вполне выполнимая, но требующая знаний и внимательности. Неправильно подобранный тип радиатора, несоблюдение требований СНиП, ошибки при подключении труб – все это может свести на нет ваши усилия и привести к серьезным проблемам. В 2025 году, с учетом постоянно меняющихся строительных норм и технологий, особенно важно подходить к этому вопросу осознанно.
Данная статья – ваш путеводитель в мире отопления. Мы подробно рассмотрим все этапы установки радиаторов, от выбора типа и материалов до подключения к системе и проверки на герметичность. Мы поможем вам избежать распространенных ошибок, научим правильно рассчитывать размеры радиаторов и соблюдать требования СНиП. Вместе мы создадим эффективную и надежную систему отопления, которая обеспечит комфорт и уют в вашем доме на долгие годы!
Типы радиаторов и необходимые материалы для монтажа
Выбор радиатора – первый и важный шаг к эффективному отоплению. Существуют чугунные, алюминиевые и биметаллические модели, каждая из которых имеет свои преимущества и недостатки. Чугунные радиаторы отличаются долговечностью и инертностью, но имеют большой вес и медленно нагреваются. Алюминиевые – легкие и быстро нагреваются, но менее устойчивы к коррозии. Биметаллические сочетают в себе преимущества обоих типов, обеспечивая надежность и эффективный теплообмен.
Для успешного монтажа вам понадобятся: ключи для труб и фитингов, уровень, перфоратор, разводной ключ, а также трубы (полипропиленовые или металлопластиковые), фитинги, краны, заглушки, кронштейны, байпас и удлинитель протока. Выбор кронштейнов зависит от типа стены: для гипсокартона потребуются специальные дюбели, для бетона – анкерные болты. Учитывайте вес батареи: чем тяжелее радиатор, тем прочнее должны быть кронштейны.
Не забудьте о дополнительных материалах: терморегуляторы, запорная арматура, антифриз (для закрытых систем). Правильный выбор материалов – залог долговечности и надежности вашей отопительной системы. В следующих разделах мы подробно рассмотрим требования СНиП и схемы подключения, чтобы вы могли выполнить монтаж самостоятельно и без ошибок!
Обзор чугунных, алюминиевых и биметаллических радиаторов: плюсы и минусы
Чугунные радиаторы – классика жанра, отличающаяся высокой теплоемкостью и долговечностью. Плюсы: устойчивость к коррозии, надежность, низкая цена. Минусы: большой вес, медленный нагрев, неэстетичный внешний вид. Подходят для систем с естественной циркуляцией теплоносителя.
Алюминиевые радиаторы – легкие и быстро нагреваются, обеспечивая комфортную температуру в помещении. Плюсы: малый вес, высокая теплоотдача, современный дизайн. Минусы: чувствительность к качеству теплоносителя, подверженность коррозии. Требуют использования специальных ингибиторов.
Биметаллические радиаторы – сочетают в себе стальную сердцевину и алюминиевое покрытие, что обеспечивает высокую прочность и эффективный теплообмен. Плюсы: устойчивость к коррозии, высокая теплоотдача, универсальность. Минусы: более высокая цена по сравнению с чугунными и алюминиевыми. Выбор зависит от типа системы отопления и ваших предпочтений!
Необходимые инструменты для установки радиаторов отопления
Для качественного монтажа радиаторов отопления вам потребуется следующий набор инструментов: перфоратор с бурами для бетона и дерева, разводной ключ (несколько размеров), уровень (ватерпас), гаечные ключи, отвертки (плоская и крестовая), плоскогубцы, индикаторная отвертка, рулетка, карандаш или маркер для разметки.
Кроме того, понадобятся: трубный ключ для работы с трубами, сварочный аппарат (если требуется сварка), болгарка с отрезными дисками, емкость для слива теплоносителя, ветошь, а также средства индивидуальной защиты – очки и перчатки. Не забудьте про фитинги, трубы, краны, заглушки, кронштейны и удлинитель протока!
Правильный выбор инструмента – залог успешной установки. Убедитесь, что все инструменты исправны и соответствуют требованиям безопасности. Качественный инструмент облегчит работу и позволит избежать ошибок, которые могут привести к протечкам и другим проблемам.
Выбор кронштейнов: типы стен и вес батарей

Выбор кронштейнов – критически важный этап, напрямую влияющий на надежность и безопасность установки. Для бетонных стен подойдут стандартные кронштейны, рассчитанные на соответствующую нагрузку. Для гипсокартонных стен необходимы специальные дюбели и кронштейны, способные выдержать вес радиатора, иначе есть риск обрушения конструкции.
Вес батареи – определяющий фактор при выборе кронштейнов. Чем тяжелее радиатор, тем более прочными и надежными должны быть крепления. Рекомендуется использовать не менее двух, а для больших радиаторов – трех или даже четырех кронштейнов. Учитывайте материал стен и тип радиатора при расчете необходимой несущей способности.
Настенные и напольные радиаторы требуют разных типов кронштейнов. Напольные модели часто устанавливаются на регулируемые опоры, а настенные – на кронштейны, обеспечивающие надежное крепление к стене. Правильное закрепление кронштейнов влияет на эффективность функционирования системы отопления.
Требования СНиП к установке радиаторов отопления
СНиП предъявляют четкие требования к установке радиаторов, обеспечивающие безопасность и эффективность системы. Оптимальные отступы от пола – не менее 10 см, от подоконника – не менее 10 см, от стены – не менее 3 см, для обеспечения свободной циркуляции воздуха и теплоотдачи. Настоящие строительные нормы распространяются на системы теплоснабжения, отопления, вентиляции и кондиционирования воздуха.
Размеры радиаторов должны соответствовать площади помещения и размеру окна. Согласно требованиям СНиП, для жилого помещения длина радиатора должна быть не менее 50% от длины окна, независимо от его размера. Это обеспечивает достаточную тепловую мощность для обогрева помещения. Важно учитывать теплопотери помещения при расчете необходимой мощности радиаторов.
Требования к присоединению трубопроводов к радиаторам также регламентируются СНиП. Необходимо использовать качественные фитинги и трубы, обеспечивающие герметичность соединения. Разностороннее присоединение трубопроводов следует предусматривать к радиаторам с числом секций более 20. Соблюдение этих норм гарантирует надежную и долговечную работу системы отопления.
Оптимальные отступы от пола, подоконника и стены согласно СНиП

СНиП четко регламентируют расстояния для обеспечения эффективной циркуляции воздуха и максимальной теплоотдачи. Минимальный отступ от пола – 10 см, это предотвращает скопление холодного воздуха и обеспечивает равномерный прогрев помещения. От подоконника требуется отступ не менее 10 см, чтобы избежать перекрытия теплового потока от радиатора шторами или другими предметами.
Расстояние от стены до радиатора должно быть не менее 3 см, для обеспечения свободной конвекции воздуха. Настоящие строительные нормы распространяются на системы теплоснабжения, отопления, вентиляции и кондиционирования воздуха. Несоблюдение этих отступов снижает эффективность отопления и может привести к образованию конденсата и плесени.
Важно учитывать, что эти значения являются минимальными. В некоторых случаях, в зависимости от конструкции радиатора и особенностей помещения, может потребоваться увеличение отступов. Соблюдение требований СНиП гарантирует оптимальную работу системы отопления и комфортный микроклимат в вашем доме.
Ошибки при подключении труб и фитингов, приводящие к протечкам
Наиболее частая причина протечек – некачественная резьбовая нарезка или недостаточная герметизация соединений. Использование неподходящих фитингов, не соответствующих диаметру труб, также может привести к утечкам. Важно тщательно затягивать все соединения, но не переусердствовать, чтобы не повредить резьбу.
Неправильный выбор уплотнительных материалов (лен, паста, ФУМ-лента) – еще одна распространенная ошибка. Необходимо использовать материалы, предназначенные для конкретного типа соединения и теплоносителя. Microsoft 365 is a product family of productivity software, collaboration and cloud-based services. Игнорирование необходимости использования прокладок в соединениях также чревато протечками.
Некачественный монтаж байпаса или удлинителя протока может стать причиной скрытых протечек. Соблюдение технологии подключения, правильный выбор и установка фитингов – залог надежности и долговечности системы отопления. Регулярная проверка соединений на герметичность поможет вовремя выявить и устранить потенциальные проблемы.

